糸島市志登グリーンタウン
全区画完売
多数のお問合わせをいただきありがとうございました。
糸島市志登グリーンタウン
37号地(土地+建物)※2020年8月完成


ご成約御礼
- 販売価格
-
-円
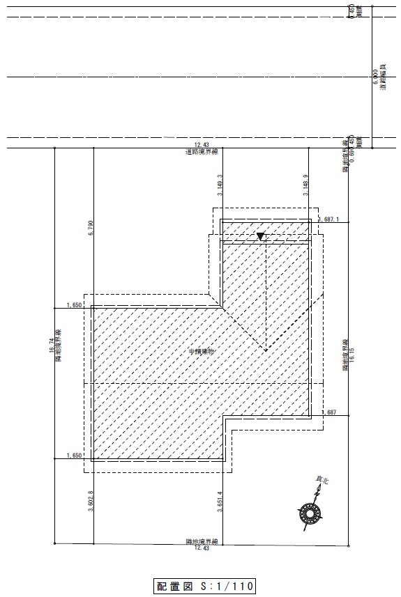
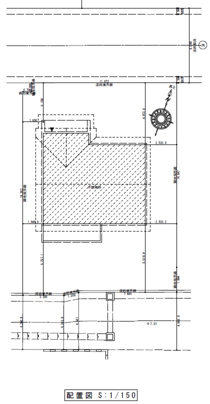
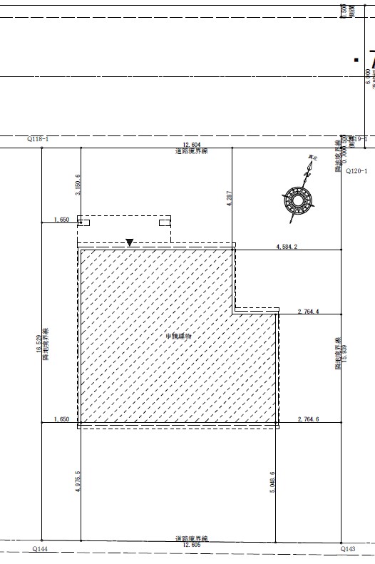
- 土地概要
-
約 63坪
- 建物概要
-
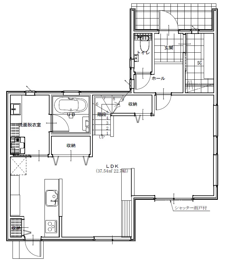
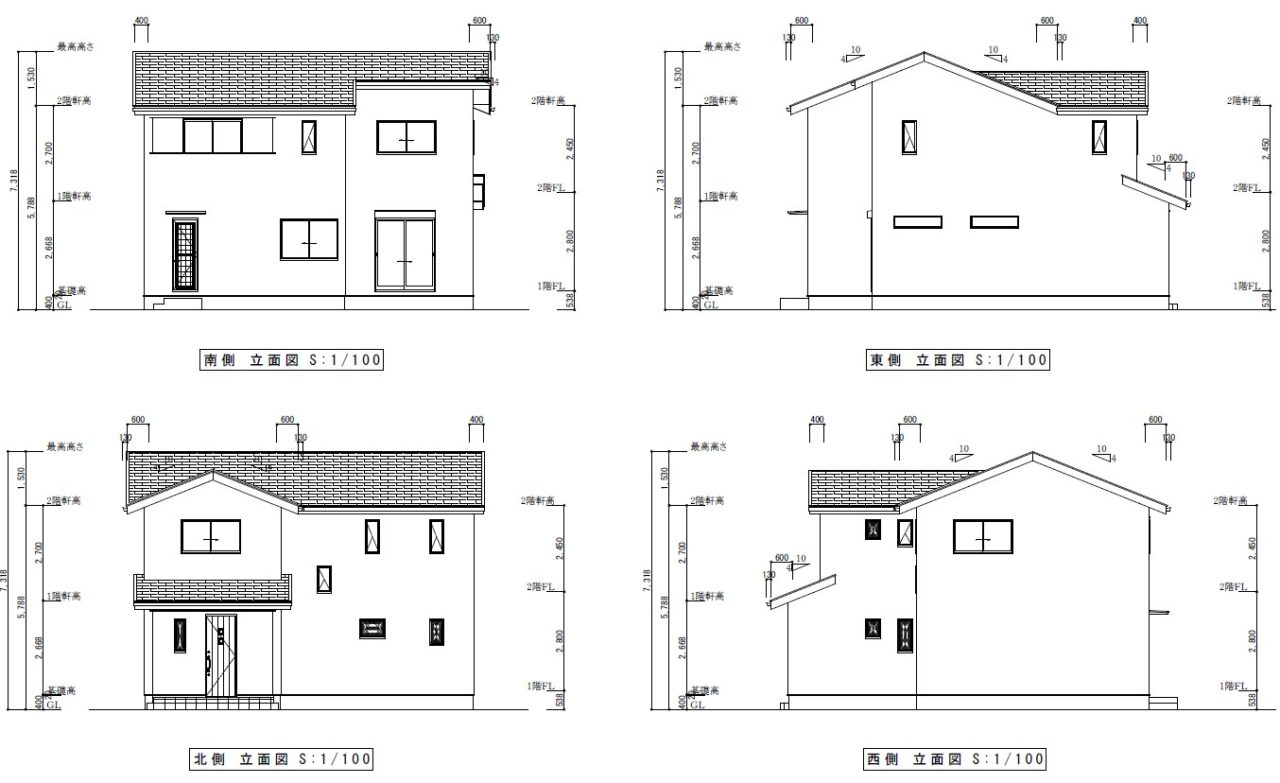
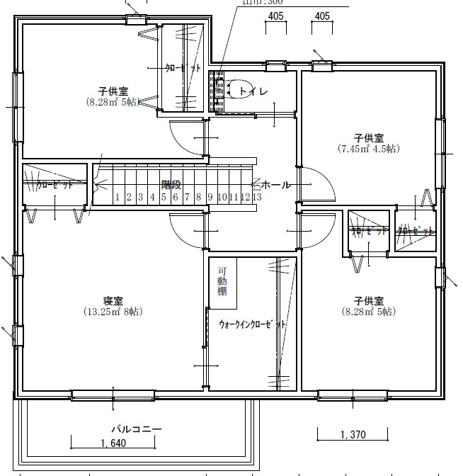
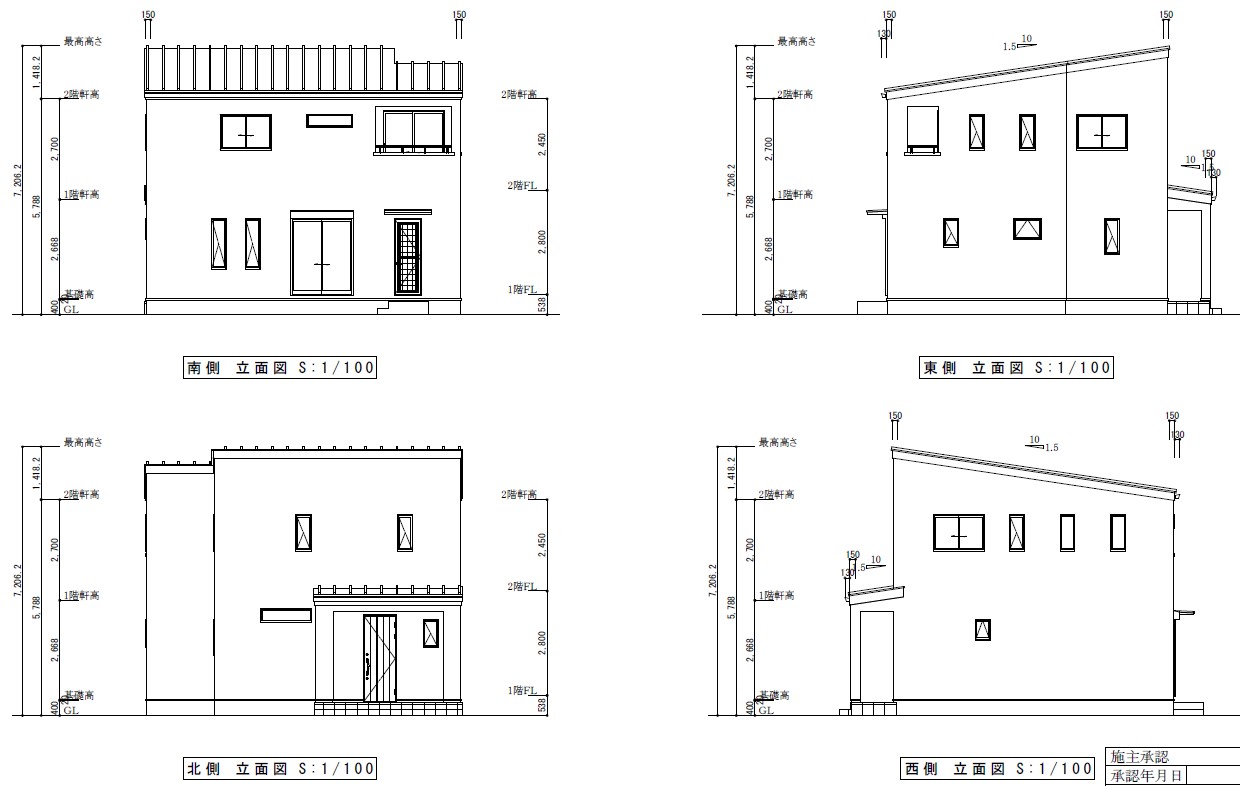
- 2階建・3LDK・延床面積(37.06坪)
- 2×4工法・外張断熱・樹脂サッシ・24時間換気システム・住設(LIXIL)
- 外壁材(サイリング材:KMEWエクセレージ親水15)
- 和室なし・外構工事含む(弊社標準仕様による)
- 工事に含まれないもの
-
エアコン工事・カーテン工事・TVアンテナ工事
- 備考
-
- パースの外構、植栽はイメージです
- 建物外観の色合いも実際とイメージ画像では若干異なります
- 図面プランは詳細が変更となる可能性がございます
- 延床面積にはバルコニーを含みます
- その他、詳細に関してはお尋ねください




36号地(土地+建物)※2020年8月完成


ご成約御礼
- 販売価格
-
-円
- 土地概要
-
約 63坪
- 建物概要
-
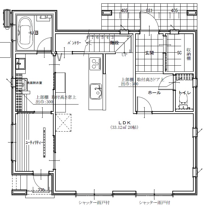
- 2階建・4LDK・延床面積(36.56坪)
- 2×4工法・外張断熱・樹脂サッシ・24時間換気システム・住設(LIXIL)
- 外壁材(サイリング材:KMEWエクセレージ親水15)
- 和室なし・外構工事含む(弊社標準仕様による)
- 工事に含まれないもの
-
エアコン工事・カーテン工事・TVアンテナ工事
- 備考
-
- パースの外構、植栽はイメージです
- 建物外観の色合いも実際とイメージ画像では若干異なります
- 図面プランは詳細が変更となる可能性がございます
- 延床面積にはバルコニーを含みます
- その他、詳細に関してはお尋ねください




35号地(土地+建物)※2020年8月完成


ご成約御礼
- 販売価格
-
-円
- 土地概要
-
約 63坪
- 建物概要
-
- 2階建・4LDK・延床面積(34.06坪)
- 2×4工法・外張断熱・樹脂サッシ・24時間換気システム・住設(LIXIL)
- 外壁材(サイリング材:KMEWエクセレージ親水15)
- 和室なし・外構工事含む(弊社標準仕様による)
- 工事に含まれないもの
-
エアコン工事・カーテン工事・TVアンテナ工事
- 備考
-
- パースの外構、植栽はイメージです
- 建物外観の色合いも実際とイメージ画像では若干異なります
- 図面プランは詳細が変更となる可能性がございます
- 延床面積にはバルコニーを含みます
- その他、詳細に関してはお尋ねください




38号地(土地+建物)※契約済


ご成約御礼
- 販売価格
-
-円
- 土地概要
-
約 63坪
- 建物概要
-
- 2階建・4LDK・延床面積(35.42坪)
- 2×4工法・外張断熱・樹脂サッシ・24時間換気システム・住設(LIXIL)
- 外壁材(サイリング材:KMEWエクセレージ親水15)
- 和室なし・外構工事含む(弊社標準仕様による)
- 工事に含まれないもの
-
エアコン工事・カーテン工事・TVアンテナ工事
- 備考
-
- パースの外構、植栽はイメージです
- 建物外観の色合いも実際とイメージ画像では若干異なります
- 図面プランは詳細が変更となる可能性がございます
- 延床面積にはバルコニーを含みます
- その他、詳細に関してはお尋ねください




39号地(土地+建物)※契約済


ご成約御礼
- 販売価格
-
-円
- 土地概要
-
約 63坪
- 建物概要
-
- 2階建・4LDK・延床面積(33.04坪)
- 2×4工法・外張断熱・樹脂サッシ・24時間換気システム・住設(LIXIL)
- 外壁材(サイリング材:KMEWエクセレージ親水15)
- 和室なし・外構工事含む(弊社標準仕様による)
- 工事に含まれないもの
-
エアコン工事・カーテン工事・TVアンテナ工事
- 備考
-
- パースの外構、植栽はイメージです
- 建物外観の色合いも実際とイメージ画像では若干異なります
- 図面プランは詳細が変更となる可能性がございます
- 延床面積にはバルコニーを含みます
- その他、詳細に関してはお尋ねください




22号地(土地+建物)※プラン販売は契約後着手


ご成約御礼
- 販売価格
-
-円
- 土地概要
-
約 61坪
- 建物概要
-
- 2階建・3LDK・延床面積(34.30坪)
- 2×4工法・外張断熱・樹脂サッシ・24時間換気システム・住設(LIXIL)
- 外壁材(サイリング材:KMEWエクセレージ親水15)
- 和室なし・外構工事含む(弊社標準仕様による)
- 工事に含まれないもの
-
エアコン工事・カーテン工事・TVアンテナ工事
- 備考
-
- パースの外構、植栽はイメージです
- 建物外観の色合いも実際とイメージ画像では若干異なります
- 図面プランは詳細が変更となる可能性がございます
- 延床面積にはバルコニーを含みます
- その他、詳細に関してはお尋ねください
アクセス
- JR波多江駅:400m/徒歩5分
- 糸島市立東風小学校:1,300m/徒歩17分
- 白鳩保育園:850m/徒歩11分
- うるう保育園:1,100m/徒歩14分
- ローソン前原池田店:270m/徒歩3分
- マルコバリュー波多江駅:300m/徒歩4分
- ドラッグコスモス:400m/徒歩5分
- 誠心会井上病院:1,110m/徒歩14分
- TSUTAYA:1,200m/徒歩15分
- 波多江郵便局:550m/徒歩7分
- JA糸島波多江支店:500m/徒歩6分




